The WARP Charger Stand is available with one or two WARP Chargers and in stainless steel or powder-coated.
The stands have the following technical specification:
Properties
| Property | Value |
|---|
| Number of WARP Chargers | 1‐2 |
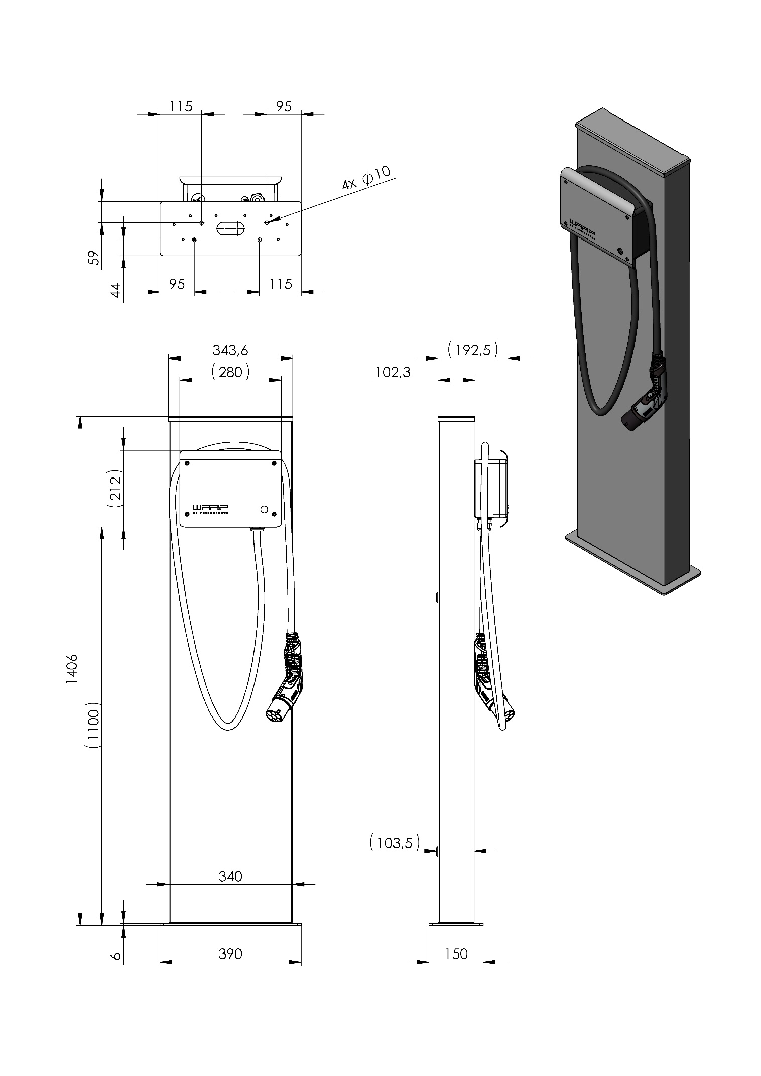
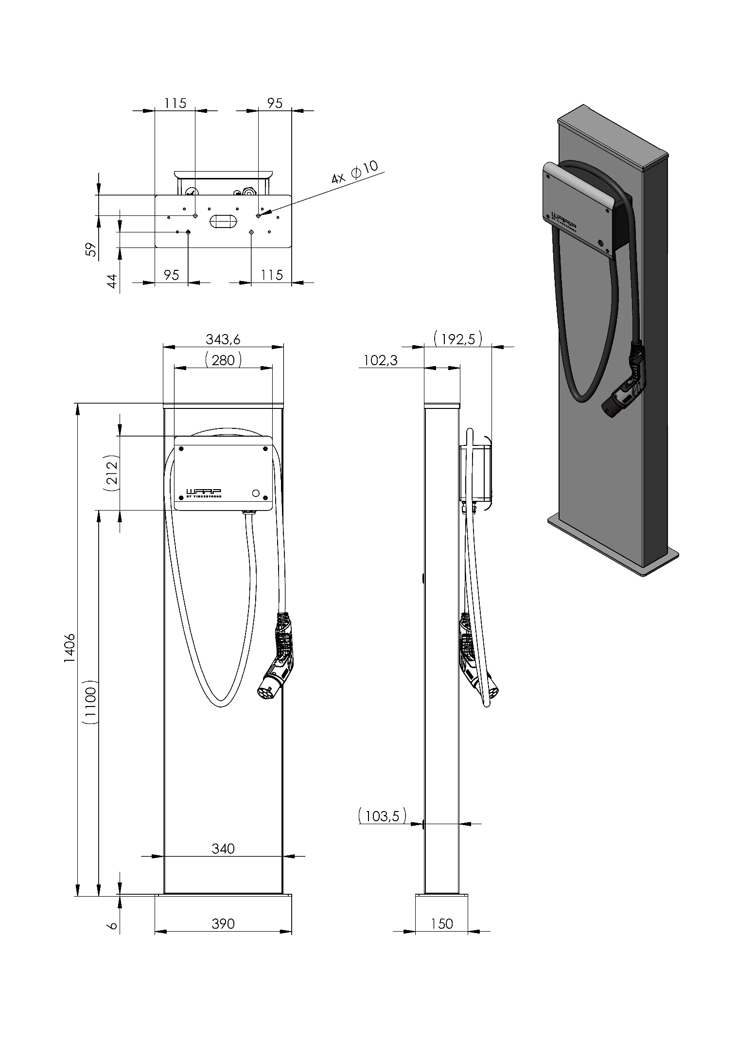
| Dimensions | 300 × 1500 × 100 mm (W/H/D), see below for details |
| Scope of Delivery | Stand with 1 or 2 WARP Chargers (pre-wired on request), mounting aid, drilling template |
Properties Galvanized Steel DB703 Powder-Coated
| Property | Value |
|---|
| Material | Steel, galvanized |
| Material Thickness | 2.0 mm |
| Weight | approx. 25 kg without chargers |
| Color | DB703, micaceous iron oxide paint |
Properties V4A Stainless Steel
| Property | Value |
|---|
| Material | V4A |
| Material Thickness | 1.5 mm |
| Weight | approx. 22 kg without chargers |
| Color | Stainless steel |
Dimensions of Stand with One WARP Charger

Dimensions of Stand with Two WARP Chargers
